Sponsored Links

Previous | Next | Discuss :: Free Advice (General Feng Shui)


Topic: Part I - Alternative placement of altar, 2 Attachments
Conf: Discuss :: Free Advice (General Feng Shui), Msg: 11161
From: Anon (Hidden from Privacy)
Date: 5/8/2002 10:40 AM

Dear Wasis,

Thank you for your file attachment of your layout plan.

1. I have taken the liberty of also adding the bedroom layout plan based on Shapes and Form Feng Shui.

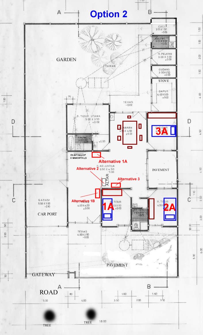
2. The two main attachments:-

blueprint-wasis1.jpg - Option 1 with bedroom/wardrope layouts under S/no. 1, 2, 3, 4.

And alter position Alternative 1.

blueprint-wasis2.jpg - Option 2 with alternative bedroom/wardrope layouts under S/no. 1A, 2A and 3A.

3. With alternative positions for the placement of the altar:-

3.1 Alternative 1A
3.2 Alternative 1B

3.3 Alternative 2
3.4 Alternative 3

4. Comments

Before we look at the various alternatives, my major concerns are as follows:-

4.1 Your proposed location is acceptable even if it is on the same wall as the toilet area since, this wall is `clean' and unlike the location where you had the 8 immortals picture placed. The altar should not be at that location (since it is on the opposite wall as the WC).

4.2 The main concern with your proposed location is that the altar will be facing `into' the bedroom. Marked as S/no 1.

I tried to play with the various orientation of the bed in this bedroom and it seems that each way, the the bed will face the altar directly and thus inauspicious.

In Part II, I will attach file attachments of :-

blueprint-wasis3.jpg
blueprint-wasis4.jpg

5. Comments on the various alternatives of the placement of the altar

Alternative 1A is inauspicious IF it faces the main door. (From your past message, you mentioned that you may want to tilt the main door entrance. If so, this spot may be considered afterwards.

Alternative 1B - this is a possibility.

Alernative 2 - this is acceptable location. And it's distinct advantage is that the living room and dining room can be segregated into two `auspicious' rectangular shape.

Alternative 1 - this is acceptable location. As it is similar to option Alternative 2, where the living room and dining room can be segregated into two `auspicious' rectangular shape. The only decision if this is chosen is either whether to face towards the garage area or pavement area.

Alternative 3 - is a remote possibility. I say remote because, it would be inauspicious to have the altar face the dining table. If it does not and if the altar is higher than the basin opposite it, then this is a possible location.

Warmest Regards,
Cecil

On 5/8/2002 9:12:00 AM, Wasis Sugiono wrote:
>Dear Cecil,
>Please see below:
>> 5. No, the altar should preferably not be placed on the same wall as the
>> toilet. This is considered inauspicious.
>The altar in my house shares
>the same wall with the toilet
>but it is not on the other
>side of the toilet. Perhaps
>the picture I attach could
>clarify the situation. In
>addition, there is a painting
>of "The 8 Immortals crossing
>the sea" hanged on the
>wall which is exactly on the
>other side of the toilet. Are
>both placements of altar &
>painting considered
>inauspicious? Thanks in
>advance.
>Regards,
>Wasis
>> >As for an altar, is it ok to
>> >be placed on the same wall as
>> >the toilet?
>


Click to open!blueprint-wasis2.jpg
Alternatives for placement of an altar (96,266 bytes)

Click to open!blueprint-wasis1.jpg
Placement of altar (94,294 bytes)

Copyright 1996-onwards Geomancy.Net, Cecil & Robert Lee. All Rights Reserved.

International Copyright & Intellectual Property Rights Notice
All messages posted TO THIS SITE which includes this forum and other contents made accessable by us to the public cannot be copied; reproduced; recompiled; stored in a retrieval system; or transmitted, in any form or by any means; electronic; mechanical; photocopying; recording; or otherwise. - Learn more

Please kindly contact us at support@geomancy.net. if you should encounter any breach of Copyright and Intellectual Property rights. Thank you in advance!

Back to Feng Shui at Geomancy.Net

 [ Site Search | Forum Search | Picture Search | Site Map ]

 

Help Desk: (65) 9785-3171

 

 

 

Highlights

Extend your learning with Master Cecil Lee's Applied Feng Shui Made Easy Book.

" Real People, Real Life, Real Situation " - Learn from thousands of actual case studies at our popular Free Advice Forum.

" Worry-Free Professional Feng Shui Services " - from the authors of Geomancy.Net

[ Award & Accolades ]
 

Site Navigation

Home
   Feng Shui Freebies
   Feng Shui Resources
     Fun with Feng Shui
     Major FS Theories
     Feng Shui Articles
     Feng Shui Advice
     FS Reference
     Slide Show
     Calendar of Events
     Educational Polls
     Site Review
     Yearly Forecast
     Chinese Horoscope
     Popular Topic
   Picture Resources
   Chinese Horoscope
   Personalised Reports
   e-Bookstore
   Feng Shui Courses
   Products & Services
   Consultation Services
   Shop @ Geomancy
   Students Services
   Events @ Geomancy
   Webmaster
   FAQ / Help
   About Us
   Contact Us
   Members Area
   Ask Expert Forum
   Search Website
   Site Tools
   Others Areas
   Live Chat
   Recommend Us
   Site Map

Google SiteSearch

Geomancy.net Web
Search Powered by Google

Sponsored Links